在礦山、建筑等領域有許多的生產工程與項目,它們所需的生產工藝是不同的,其中之一就是干混砂漿生產線,關于這一生產流程還有許多人不了解,這里就是由世邦帶您來了解一下這一生產工程。
世邦工業科技集團不僅生產類型的破碎、磨碎等設備,還會根據用戶的生產需求,將這些不同的設備配置成不同的生產線,比較常見的是破碎機+制砂機的組合形成的制砂流程,在這眾多的生產線中,其中之一就是干混砂漿生產線,這里就是詳細的來介紹一下這一生產線。
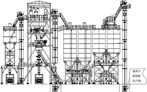
干混砂漿生產線由砂子烘干機、篩分機、砂子、水泥、粉煤灰、外加劑儲倉、物料計量稱、物料輸送設備、砂漿混合機、砂漿儲倉及砂漿包裝機構成;
干混砂漿生產線主要功能是將經過干燥篩分的砂子與水泥、粉煤灰外加劑等材料按一定比例混合成建筑用的砌筑砂漿、抹面砂漿和地坪砂漿,經過包裝或散裝形式供給工程施工,依據工廠生產能力劃分干粉砂漿生產線的規模,年產量以萬噸計;

干粉砂漿生產線依據布置形式,有塔樓式和兩階式之分。塔樓式布局物料流動順暢,占地面積小,但結構成本偏大,兩階式布局增加二次提升,儲倉以地面布置為主,設備造價較低,是目前應用較為普遍的形式;
文章主要介紹的是世邦帶你了解干混砂漿生產線,主要分析的是干混砂漿生產線的相關情況,比如其組成,比如其作用,再比如其分類,該生產線是眾多生產工藝中的一個,這里是來介紹一下與其相關的一些情況,幫助大家更好的了解該生產線。
——END——